CADANGAN
MEMBINA DAN MENYIAPKAN:
a) 12 UNIT RUMAH TERES 1 TINGKAT (20’×70’)
b) 20 UNIT RUMAH BERKEMBAR 1 TINGKAT
c) 4 UNIT RUMAH SESEBUAH 1 TINGKAT
d) 1 UNIT AKTIVITI ISLAM
a) 12 UNIT RUMAH TERES 1 TINGKAT (20’×70’)
b) 20 UNIT RUMAH BERKEMBAR 1 TINGKAT
c) 4 UNIT RUMAH SESEBUAH 1 TINGKAT
d) 1 UNIT AKTIVITI ISLAM
HAKMILIK GM 203, LOT 3968, SELUAS 3.891 EKAR (1.570 HEKTAR), TAMAN KENANGA, MUKIM KELANANG, DAERAH KUALA LANGAT, SELANGOR DARUL EHSAN UNTUK: TETUAN SBS PROPERTY DEVELOPMENT (M) SDN. BHD.
![]() |
TERRACE
•BUILT-UP AREA : 902 SQFT
•LAND SIZE : 1,400 - 3,070 SQFT
•NO. OF UNITS : 8 (Intermediate) & 2 (Corner)
|
![]() |
SEMI-D TYPE A
•BUILT-UP
AREA : 1,128 SQFT
•LAND
SIZE : 3,061 – 4,042 SQFT
•NO.
OF UNITS : 12
|
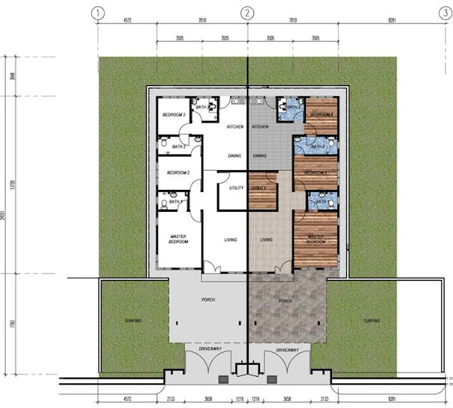
![]() |
SEMI-D TYPE B
•BUILT-UP
AREA : 1,066 SQFT
•LAND SIZE :
2,560 SQFT
•NO.
OF UNITS : 4
|
![]() |
BUNGALOW TYPE E
•BUILT-UP
AREA : 1,563 SQFT
•LAND
SIZE : 5,098 – 6,316 SQFT
•NO.
OF UNITS : 3
RINGKASAN PROJEK DI TAMAN KENANGA 2, BANTING
|
SPESIFIKASI SETIAP RUMAH











No comments:
Post a Comment